2
$455,990 Sale
Listed 3 hours ago
255 Windrow Link SW
· 3
· 2.50
· 2
· 1404.33
Key Facts
Key facts for 255 Windrow Link SW
Property Type
Townhome, 2 Storey
Parking
Double Garage Attached , Double Garage Attached 2 parking
MLS #
A2264772
Size
1404.33 sqft
Basement
Full,Unfinished
Listed on
-
Lot size
-
Days on Market
-
Year Built
2025
Maintenance Fee
-
Description
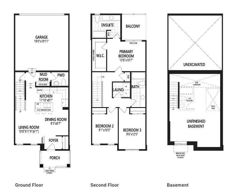
The Fisher’s open concept floorplan creates a family-oriented living space. Entering the foyer, you’ll find a large, combined living and dining area that’s perfect for entertaining. The unique, L-shaped kitchen with an island and breakfast bar is the perfect place for showing off your culinary skill...s. A mudroom off the garage provides extra storage and a powder room allows everyone to freshen up. Upstairs, you’ll find a conveniently placed laundry room by the bedrooms and linen closet, so you can forgo the dreaded uphill battle with the stairs. Discover a full bath in the second and third bedrooms. In the primary bedroom, you won’t need to go far for some quality R&R. Kick back on your own private balcony, and enjoy an oversized walk-in closet and an ensuite. Enjoy no condo fees with a Mattamy townhome. Mattamy includes 8 solar panels on all homes as a standard inclusion! Photos & virtual tour are representative.
Similar Properties (No results)
Room Types
2pc Bathroom
0`0" x 0`0"
Dimensions -
0 sqft
Kitchen
11`10" x 8`7"
Dimensions -
0 sqft
Dining Room
8`3" x 8`7"
Dimensions -
0 sqft
Courtesy of: Bode Platform Inc.
Copyright Pillar 9™. All rights reserved. Information is deemed reliable but not guaranteed.